









Apartament ca o casa | living + balcon 40 mp | vedere parc | garaj | curte
Cluj-Napoca, Gheorgheni / FSEGA
429.950€
Camere
4
Suprafata utila
120.55 mp
Suprafata construita
159 mp
Etaj
Etaj 2
Bai
2
An constructie
1980
- ID:P255072
- Nr. camere:4
- Nr. dormitoare:3
- S. utila:120.55 mp
- S. balcoane:20.00 mp
- S. construita:159.00 mp
- Confort:1
- Etaj:Etaj 2
- Nr. bucatarii:1
- Nr. bai:2
- Nr. balcoane:2
- Nr. garaje:1
- An constructie:1980
- Regim inaltime:P+4
- Orientare:Sud-Vest
Descriere
Un apartament care se simte diferit încă de la prima vizionare.
🎥 Pentru o primă impresie completă, îți pot trimite turul video direct pe WhatsApp.
Un spațiu rar, unde zona de zi se deschide către parc, într-un imobil cu doar 12 apartamente, amplasat într-o curte închisă, verde și liniștită — intimitatea unei case, la câteva minute de centru.
Într-una dintre cele mai verzi și liniștite zone ale orașului, la doar câteva minute de centru, vă prezentăm un apartament care se diferențiază încă de la primul criteriu important: suprafața totală generoasă de 163,22 mp, ce include nu doar locuința propriu-zisă, ci și balcoanele, pivnița și garajul — un pachet complet, rar în această zonă.
Apartamentul dispune de o suprafață utilă de 120,55 mp, la care se adaugă două balcoane, pivniță și garaj închis, oferind un echilibru foarte bun între spațiu, funcționalitate și confort.
Imobilul este compus din doar 12 apartamente și este amplasat într-o curte generoasă, închisă, cu mult spațiu verde, liniște și intimitate — un cadru rar întâlnit în proximitatea centrului. Deschiderea către parc completează acest tablou și oferă un ambient natural, aerisit, care apropie experiența de locuire de cea a unei case.
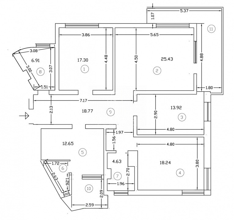
Punctul central al proprietății este zona de zi, compusă dintr-un living generos de 25,43 mp, cu acces direct către un balcon amplu de 14,70 mp. Împreună, acestea formează un spațiu de aproximativ 40 mp, deschis către exterior, cu vedere către parc și orientare sud-vest — un avantaj major care asigură lumină naturală abundentă în a doua parte a zilei și un ambient cald, ideal pentru relaxare.
Bucătăria, în suprafață de 12,65 mp, este separată și completată de o cameră de alimente, iar accesul către cel de-al doilea balcon (5,64 mp) se face direct din bucătărie — un detaliu practic, ideal pentru aerisire sau utilizări complementare.
Zona de noapte este bine delimitată și cuprinde trei camere spațioase, de 17,30 mp, 18,24 mp și 13,92 mp, toate beneficiind de proporții echilibrate și înălțime interioară de aproximativ 3 metri, ceea ce amplifică senzația de spațiu și luminozitate.
Apartamentul dispune de două băi, ambele cu geam pentru aerisire naturală, un avantaj rar și extrem de apreciat.
Un element important în configurarea locuinței este și holul generos de 18,77 mp, care poate fi valorificat inteligent prin spații de depozitare, dressing sau zone funcționale suplimentare.
Proprietatea este completată de:
pivniță proprie de 5,73 mp
garaj închis de 16,60 mp, un beneficiu esențial într-o zonă apropiată de centru
Construcția solidă, specifică anilor ’80, cu pereți groși și compartimentare practică, împreună cu poziționarea la etaj intermediar, oferă un confort termic foarte bun.
Este o proprietate care reușește rar să combine suprafața unui apartament mare cu avantajele unei case: intimitate, curte, verdeață, liniște și deschidere către parc — toate într-o locație aproape de centru.
Citeste mai mult
🎥 Pentru o primă impresie completă, îți pot trimite turul video direct pe WhatsApp.
Un spațiu rar, unde zona de zi se deschide către parc, într-un imobil cu doar 12 apartamente, amplasat într-o curte închisă, verde și liniștită — intimitatea unei case, la câteva minute de centru.
Într-una dintre cele mai verzi și liniștite zone ale orașului, la doar câteva minute de centru, vă prezentăm un apartament care se diferențiază încă de la primul criteriu important: suprafața totală generoasă de 163,22 mp, ce include nu doar locuința propriu-zisă, ci și balcoanele, pivnița și garajul — un pachet complet, rar în această zonă.
Apartamentul dispune de o suprafață utilă de 120,55 mp, la care se adaugă două balcoane, pivniță și garaj închis, oferind un echilibru foarte bun între spațiu, funcționalitate și confort.
Imobilul este compus din doar 12 apartamente și este amplasat într-o curte generoasă, închisă, cu mult spațiu verde, liniște și intimitate — un cadru rar întâlnit în proximitatea centrului. Deschiderea către parc completează acest tablou și oferă un ambient natural, aerisit, care apropie experiența de locuire de cea a unei case.
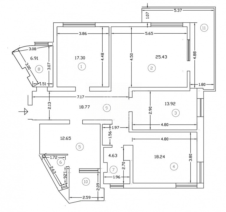
Punctul central al proprietății este zona de zi, compusă dintr-un living generos de 25,43 mp, cu acces direct către un balcon amplu de 14,70 mp. Împreună, acestea formează un spațiu de aproximativ 40 mp, deschis către exterior, cu vedere către parc și orientare sud-vest — un avantaj major care asigură lumină naturală abundentă în a doua parte a zilei și un ambient cald, ideal pentru relaxare.
Bucătăria, în suprafață de 12,65 mp, este separată și completată de o cameră de alimente, iar accesul către cel de-al doilea balcon (5,64 mp) se face direct din bucătărie — un detaliu practic, ideal pentru aerisire sau utilizări complementare.
Zona de noapte este bine delimitată și cuprinde trei camere spațioase, de 17,30 mp, 18,24 mp și 13,92 mp, toate beneficiind de proporții echilibrate și înălțime interioară de aproximativ 3 metri, ceea ce amplifică senzația de spațiu și luminozitate.
Apartamentul dispune de două băi, ambele cu geam pentru aerisire naturală, un avantaj rar și extrem de apreciat.
Un element important în configurarea locuinței este și holul generos de 18,77 mp, care poate fi valorificat inteligent prin spații de depozitare, dressing sau zone funcționale suplimentare.
Proprietatea este completată de:
pivniță proprie de 5,73 mp
garaj închis de 16,60 mp, un beneficiu esențial într-o zonă apropiată de centru
Construcția solidă, specifică anilor ’80, cu pereți groși și compartimentare practică, împreună cu poziționarea la etaj intermediar, oferă un confort termic foarte bun.
Este o proprietate care reușește rar să combine suprafața unui apartament mare cu avantajele unei case: intimitate, curte, verdeață, liniște și deschidere către parc — toate într-o locație aproape de centru.
Specificatii
Centrala proprie
Calorifere
Parchet
Ferestre Lemn
Usa interior Lemn
Esti interesat de aceasta proprietate ?