















Apartament 2 camere in bloc nou /etaj 3 - parcul Feroviarilor
Cluj-Napoca, Semicentral / P-ta Abator
185.000€
Camere
2
Suprafata utila
46 mp
Etaj
Etaj 3
Bai
1
An constructie
2019
- ID:P213801
- Nr. camere:2
- Nr. dormitoare:1
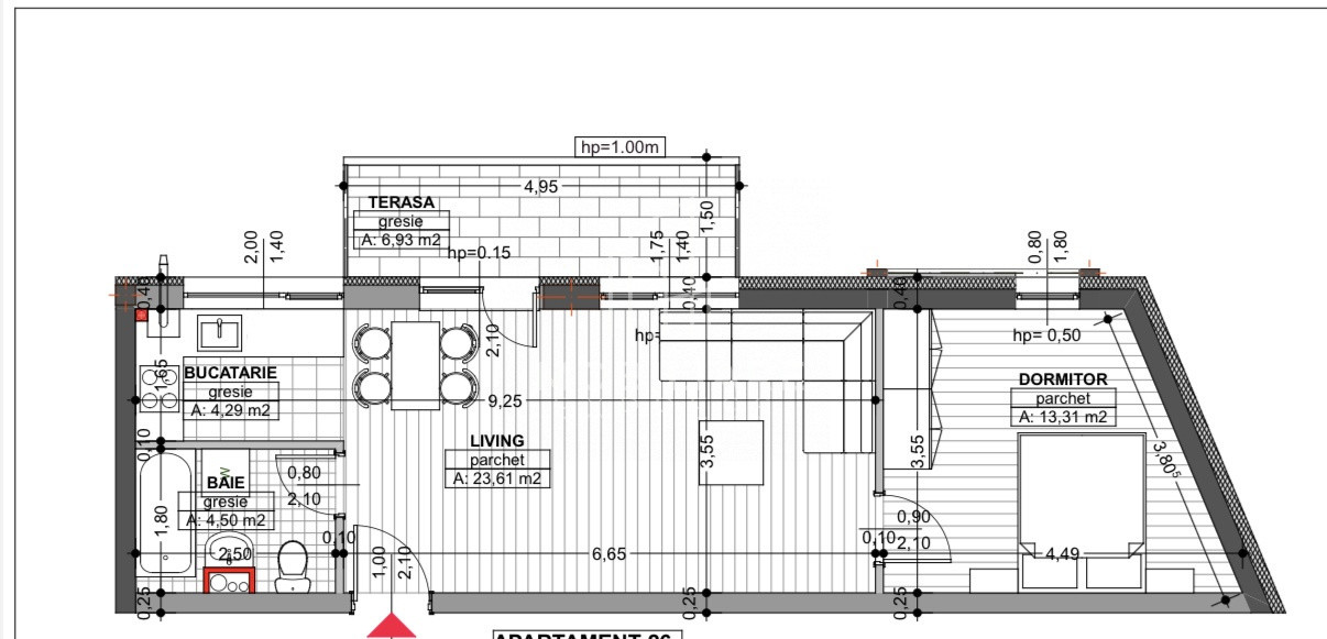
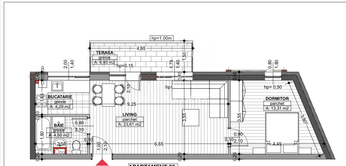
- S. utila:46.00 mp
- S. balcoane:7.00 mp
- Comp.:Semidecomandat
- Etaj:Etaj 3
- Nr. bucatarii:1
- Nr. bai:1
- Nr. balcoane:1
- An constructie:2019
- An renovare:2020
- Tip imobil:Bloc
- Regim inaltime:P+5
- Orientare:Est
Descriere
O oportunitate excelentă pentru cei care caută confort, noutate și un cămin gata de mutat- aproape de centru !
! Descopera un apartament elegant si primitor , complet mobilat și utilat ultramodern, situat la etajul 3 din 5 al unui bloc nou (finalizat în 2019), prevăzut cu lift și amplasat într-un complex rezidențial liniștit și bine poziționat , aproape de parcul Feroviarilor - recent reabilitat , prevazut cu zone moderne de relaxare
Compartimentare practică:
- living luminos cu bucătărie open-space
- dormitor
- baie modernă
- balcon
Suprafata : 46mp utili , la care se adauga suprafata de 7 mp a balconului
Dotări și beneficii:
- Amenajat cu mobilier de calitate (se vinde fără canapea și pat)
- Electrocasnice moderne incluse in pret : mașină de spălat rufe, cuptor electric, plită, frigider
- Finisaje contemporane și design interior modern
- Intreținere redusă și eficiență energetică ridicată
- Bloc modern , cu finisaje de calitate
Localizare și facilități:
Strada Anton Pann - localizata in zonă semicentrală, cu acces facil către principalele puncte ale orașului :
* la 150 m de Parcul Feroviarilor
* la 400 m de NTT
* 600 m de Liceul Teoretic Avram Iancu sau 300m de Liceul de Muzica Sigismund Toduta
* în apropierea magazinelor , cafenelelor sau centrelor de servicii
* statii ale mijloacelor de transport in comun - la 100m
Complexul oferă curte interioară amenajată cu loc de joacă pentru copii dar si o atmosferă liniștită, cu o comunitate unita !
Ideal pentru locuință personală sau investiție sigură (se pretează excelent pentru închiriere datorită poziției și dotărilor).
Pregatit pentru a fi locuit imediat , acest apartament va asteapta sa-l descoperiți , chiar acum !
Citeste mai mult
! Descopera un apartament elegant si primitor , complet mobilat și utilat ultramodern, situat la etajul 3 din 5 al unui bloc nou (finalizat în 2019), prevăzut cu lift și amplasat într-un complex rezidențial liniștit și bine poziționat , aproape de parcul Feroviarilor - recent reabilitat , prevazut cu zone moderne de relaxare
Compartimentare practică:
- living luminos cu bucătărie open-space
- dormitor
- baie modernă
- balcon
Suprafata : 46mp utili , la care se adauga suprafata de 7 mp a balconului
Dotări și beneficii:
- Amenajat cu mobilier de calitate (se vinde fără canapea și pat)
- Electrocasnice moderne incluse in pret : mașină de spălat rufe, cuptor electric, plită, frigider
- Finisaje contemporane și design interior modern
- Intreținere redusă și eficiență energetică ridicată
- Bloc modern , cu finisaje de calitate
Localizare și facilități:
Strada Anton Pann - localizata in zonă semicentrală, cu acces facil către principalele puncte ale orașului :
* la 150 m de Parcul Feroviarilor
* la 400 m de NTT
* 600 m de Liceul Teoretic Avram Iancu sau 300m de Liceul de Muzica Sigismund Toduta
* în apropierea magazinelor , cafenelelor sau centrelor de servicii
* statii ale mijloacelor de transport in comun - la 100m
Complexul oferă curte interioară amenajată cu loc de joacă pentru copii dar si o atmosferă liniștită, cu o comunitate unita !
Ideal pentru locuință personală sau investiție sigură (se pretează excelent pentru închiriere datorită poziției și dotărilor).
Pregatit pentru a fi locuit imediat , acest apartament va asteapta sa-l descoperiți , chiar acum !
Specificatii
Centrala proprie
Calorifere
Vopsea lavabila
Faianta
Parchet
Gresie
Ferestre PVC
Ferestre Termopan
Usa interior Celulare
Esti interesat de aceasta proprietate ?