









Comision 0%. 2 camere | 54 mp | Centru | Bloc nou 2025
Cluj-Napoca, Andrei Muresanu / Pasapoarte
189.000€ + TVA
Camere
2
Suprafata utila
54 mp
Etaj
Etaj 2
Bai
1
Parcari
2
An constructie
2025
- ID:P185472
- Nr. camere:2
- Nr. dormitoare:1
- S. utila:54.00 mp
- Etaj:Etaj 2
- Nr. bucatarii:1
- Nr. bai:1
- Nr. balcoane:1
- Nr. parcari:2
- An constructie:2025
- Regim inaltime:P+4
- Orientare:Sud-Vest
Descriere
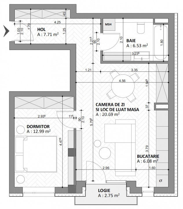
Apartament 2 camere | 54 mp | Etaj intermediar | Bloc nou 2025 | Piata Cipariu - Andrei Mureșanu – Calea Turzii | Comision 0%
Descoperă un apartament modern, ideal pentru locuit sau investiție!
Situat în zona Andrei Mureșanu – intersecția Calea Turzii cu strada Brașov, acest apartament cu 2 camere este amplasat la etaj intermediar (etaj 2 din 5), într-un bloc nou, finalizat în 2025.
Suprafață utilă: 54 mp
Compartimentare practică:
- Living open-space cu bucătărie
- Dormitor luminos
- Dressing 4 mp
- Baie
- Balcon cu orientare sud-vestică – lumină naturală pe tot parcursul zilei
Dotări & Beneficii:
- Predare în stadiu semifinisat – personalizează după propriul gust
- Centrală termică proprie
- Încălzire prin pardoseală – confort optim iarna
- Ferestre din aluminiu cu 3 foi de sticlă – izolație fonică și termică superioară
Imobil construit cu materiale moderne și finisaje de calitate
Acces rapid catre diverse institutii : Facultatea de Drept ,Tribunal, ANAF sau spre zona Sigma, Zorilor. Diverse statii ale mijloacelor de transport in comun.
Comision 0% la achiziție – colaborezi direct cu reprezentantul proprietății.
Citeste mai mult
Descoperă un apartament modern, ideal pentru locuit sau investiție!
Situat în zona Andrei Mureșanu – intersecția Calea Turzii cu strada Brașov, acest apartament cu 2 camere este amplasat la etaj intermediar (etaj 2 din 5), într-un bloc nou, finalizat în 2025.
Suprafață utilă: 54 mp
Compartimentare practică:
- Living open-space cu bucătărie
- Dormitor luminos
- Dressing 4 mp
- Baie
- Balcon cu orientare sud-vestică – lumină naturală pe tot parcursul zilei
Dotări & Beneficii:
- Predare în stadiu semifinisat – personalizează după propriul gust
- Centrală termică proprie
- Încălzire prin pardoseală – confort optim iarna
- Ferestre din aluminiu cu 3 foi de sticlă – izolație fonică și termică superioară
Imobil construit cu materiale moderne și finisaje de calitate
Acces rapid catre diverse institutii : Facultatea de Drept ,Tribunal, ANAF sau spre zona Sigma, Zorilor. Diverse statii ale mijloacelor de transport in comun.
Comision 0% la achiziție – colaborezi direct cu reprezentantul proprietății.
Specificatii
Centrala proprie
Incalzire pardoseala
Ferestre PVC
Ferestre Aluminiu
Esti interesat de aceasta proprietate ?